2023-07-28

一、项目介绍
1、应用场景:检测设备传感器
2、选择型号:L10A
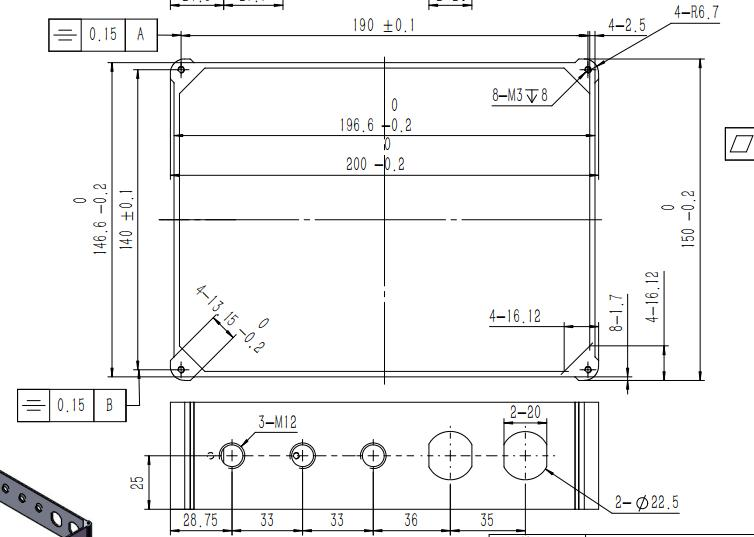
3、定制尺寸:200*150*50
4、使用型材:6063、6061、5052铝型材
5、表面处理:阳极氧化-喷砂墨玉黑
6、防水等级:IP68
![]() |
![]() |
![]() |
二、细节展示
![]() |
![]() |
![]() |
![]() |
![]() |
![]() |
三、案例说明
2.铝合金外壳加工流程
四:加工细节
![]() |
项目 | 说明 |
| 部件名称 |
上盖
|
|
| 部件尺寸 |
204-154-6
|
|
| 材料信息 |
6061合金
|
|
| 表面处理 |
喷砂墨玉黑
|
|
| 加工工序 |
锯—CNC—手动拉丝—喷砂—氧化—包装
|
![]() |
项目 | 说明 |
| 部件名称 |
下盖
|
|
| 部件尺寸 |
234-154-6
|
|
| 材料信息 |
6061合金
|
|
| 表面处理 |
喷砂墨玉黑
|
|
| 加工工序 |
锯—CNC—手动拉丝—喷砂—氧化—包装
|
![]() |
项目 | 说明 |
| 部件名称 |
壳体
|
|
| 部件尺寸 |
190-150-50
|
|
| 材料信息 |
6063-T5
|
|
| 表面处理 |
喷砂墨玉黑,激光
|
|
| 加工工序 |
锯—CNC—攻牙—喷砂—氧化—激光打标—包装
|
![]() |
项目 | 说明 |
| 部件名称 |
自粘橡胶垫
|
|
| 部件尺寸 |
12X28.9X1
|
|
| 材料信息 |
硅橡胶
|
|
| 表面处理 |
/
|
|
| 加工工序 |
/
|
![]() |
项目 | 说明 |
| 部件名称 |
不锈钢内六角杯头螺丝
|
|
| 部件尺寸 |
M3 X 8
|
|
| 材料信息 |
SUS304
|
|
| 表面处理 | / | |
| 加工工序 | / |