2023-11-18

一、项目介绍
1、应用场景:电气控制设备
2、选择型号:D09
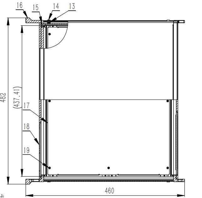
3、定制尺寸:482*4U*400
4、使用型材:6063、5052铝型材
5、表面处理:阳极氧化-拉丝皓月银、喷砂碧玉蓝
![]() |
![]() |
二、细节展示
![]() |
![]() |
![]() |
三、案例说明
1.铝合金机箱尺寸
2.铝合金机箱加工流程
四:加工细节
![]() |
项目 | 说明 |
| 部件名称 |
后面板
|
|
| 部件尺寸 |
453-170.2-5
|
|
| 材料信息 |
5052-H32
|
|
| 表面处理 |
拉丝皓月银,激光
|
|
| 加工工序 |
锯—CNC—攻牙—打磨—喷砂—氧化—激光—包装
|
![]() |
项目 | 说明 |
| 部件名称 |
上盖板
|
|
| 部件尺寸 |
462.4-375.7-6.3
|
|
| 材料信息 | 5052-H32 | |
| 表面处理 |
拉丝皓月银
|
|
| 加工工序 |
激光切割—倒角—折弯—包装
|
![]() |
项目 | 说明 |
| 部件名称 |
下盖板
|
|
| 部件尺寸 |
462.4-375.7-6.3
|
|
| 材料信息 | 5052-H32 | |
| 表面处理 |
拉丝皓月银
|
|
| 加工工序 |
激光切割—倒角—折弯—包装
|
![]() |
项目 | 说明 |
| 部件名称 |
安装垫板
|
|
| 部件尺寸 |
430.4-352-6.2
|
|
| 材料信息 |
电解板
|
|
| 表面处理 |
毛坯
|
|
| 加工工序 |
激光切割—倒角—折弯—包装
|
![]() |
项目 | 说明 |
| 部件名称 |
组合侧板
|
|
| 部件尺寸 |
19.75-13.9-376
|
|
| 材料信息 |
6063-T5
|
|
| 表面处理 |
喷砂碧玉蓝
|
|
| 加工工序 |
锯—攻牙—喷砂—氧化—包装
|
![]() |
项目 | 说明 |
| 部件名称 |
拉手
|
|
| 部件尺寸 |
180.3-52-26
|
|
| 材料信息 |
6063-T5
|
|
| 表面处理 |
喷砂碧玉蓝
|
|
| 加工工序 |
锯—CNC—喷砂—氧化—包装
|
![]() |
项目 | 说明 |
| 部件名称 |
后防护
|
|
| 部件尺寸 |
180.3-13.7-32
|
|
| 材料信息 |
6063-T5
|
|
| 表面处理 |
喷砂碧玉蓝
|
|
| 加工工序 |
锯—CNC—喷砂—氧化—包装
|

项目
说明
部件名称
部件尺寸
材料信息
表面处理
加工工序
![]() |
项目 | 说明 |
| 部件名称 |
前面板
|
|
| 部件尺寸 |
453-132-5
|
|
| 材料信息 |
5052-H32
|
|
| 表面处理 |
拉丝皓月银,激光
|
|
| 加工工序 | 锯—CNC—攻牙—打磨—喷砂—氧化—激光—包装 |
![]() |
项目 | 说明 |
| 部件名称 |
前机脚座
|
|
| 部件尺寸 |
22-14.7-40
|
|
| 材料信息 |
6063-T5
|
|
| 表面处理 |
喷砂皓月银
|
|
| 加工工序 | / |
![]() |
项目 | 说明 |
| 部件名称 |
碳钢镀镍十字大扁头螺丝
|
|
| 部件尺寸 |
M3X14
|
|
| 材料信息 | 普通碳钢 | |
| 表面处理 | / | |
| 加工工序 | / |