2023-08-02

一、项目介绍
1、应用场景:实验室地质勘查仪器
2、选择型号:E01
3、定制尺寸:328*80*220
4、使用型材:5052、5252铝型材
5、表面处理:阳极氧化-喷砂皓月银
![]() |
![]() |
![]() |
二、细节展示
![]() |
![]() |
![]() |
![]() |
![]() |
![]() |
三、案例说明
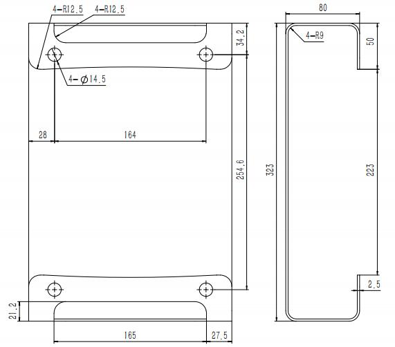
1.钣金折弯外壳尺寸
2.钣金折弯外壳加工流程
四:加工细节
![]() |
项目 | 说明 |
| 部件名称 |
上盖
|
|
| 部件尺寸 |
323-220-80
|
|
| 材料信息 |
5052-H32
|
|
| 表面处理 |
喷砂皓月银
|
|
| 加工工序 |
激光切割—CNC—折弯—手动拉丝—喷砂—氧
化—包装
|
![]() |
项目 | 说明 |
| 部件名称 |
底盖
|
|
| 部件尺寸 |
317.6-214-42.5
|
|
| 材料信息 |
5252
|
|
| 表面处理 |
喷砂皓月银
|
|
| 加工工序 |
激光切割—倒角—折弯—手动拉丝—喷砂—氧
化—UV打印—包装
|
![]() |
项目 | 说明 |
| 部件名称 |
支撑座
|
|
| 部件尺寸 |
/
|
|
| 材料信息 | 5052-H32 | |
| 表面处理 |
喷砂皓月银
|
|
| 加工工序 |
车—喷砂—氧化—包装
|
![]() |
项目 | 说明 |
| 部件名称 |
后挡板
|
|
| 部件尺寸 |
/
|
|
| 材料信息 | 5052-H32 | |
| 表面处理 |
喷砂皓月银
|
|
| 加工工序 |
车—喷砂—氧化—包装
|
![]() |
项目 | 说明 |
| 部件名称 |
碳钢镀镍十字大扁头螺丝
|
|
| 部件尺寸 |
M3X6
|
|
| 材料信息 |
碳钢
|
|
| 表面处理 | / | |
| 加工工序 | / |