2023-09-18

一、项目介绍
1、应用场景:车载设备传感器
2、选择型号:来图加工
3、定制尺寸:142*48*145
4、使用型材:6063、5052铝型材
5、表面处理:阳极氧化-喷砂夜阑灰、喷砂墨玉黑
![]() |
![]() |
![]() |
二、细节展示
![]() |
![]() |
![]() |
![]() |
![]() |
![]() |
三、案例说明
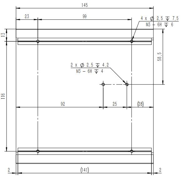
1.铝型材外壳尺寸
2.铝型材外壳加工流程
四:加工细节
![]() |
项目 | 说明 |
| 部件名称 |
壳体
|
|
| 部件尺寸 |
142*48*145
|
|
| 材料信息 |
6063-T5
|
|
| 表面处理 |
喷砂夜阑灰激光
|
|
| 加工工序 |
锯—CNC—攻牙—喷砂—氧化—激光打标—包装
|
![]() |
项目 | 说明 |
| 部件名称 |
底板
|
|
| 部件尺寸 |
145*122.8*2
|
|
| 材料信息 |
5052-H32
|
|
| 表面处理 |
喷砂墨玉黑
|
|
| 加工工序 |
激光切割—倒角—手抛打磨—手动拉丝—喷砂—
氧化—包装
|
![]() |
项目 | 说明 |
| 部件名称 |
A面板
|
|
| 部件尺寸 |
122.8*39.8*2
|
|
| 材料信息 | 5052-H32 | |
| 表面处理 |
喷砂墨玉黑激光
|
|
| 加工工序 |
激光切割—倒角—手抛打磨—手动拉丝—喷砂—
氧化—激光打标—包装
|
![]() |
项目 | 说明 |
| 部件名称 |
B面板
|
|
| 部件尺寸 |
122.8*39.8*2
|
|
| 材料信息 | 5052-H32 | |
| 表面处理 |
喷砂墨玉黑激光
|
|
| 加工工序 |
激光切割—倒角—手抛打磨—手动拉丝—喷砂—
氧化—激光打标—包装
|
![]() |
项目 | 说明 |
| 部件名称 |
碳钢镀镍十字沉头螺丝
|
|
| 部件尺寸 |
M3*6
|
|
| 材料信息 |
碳钢
|
|
| 表面处理 | / | |
| 加工工序 | / |