2023-09-04

一、项目介绍
1、应用场景:机器设备控制器
2、选择型号:H04
3、定制尺寸:52*38*97
4、使用型材:6063、5052铝型材
5、表面处理:阳极氧化-喷砂墨玉黑


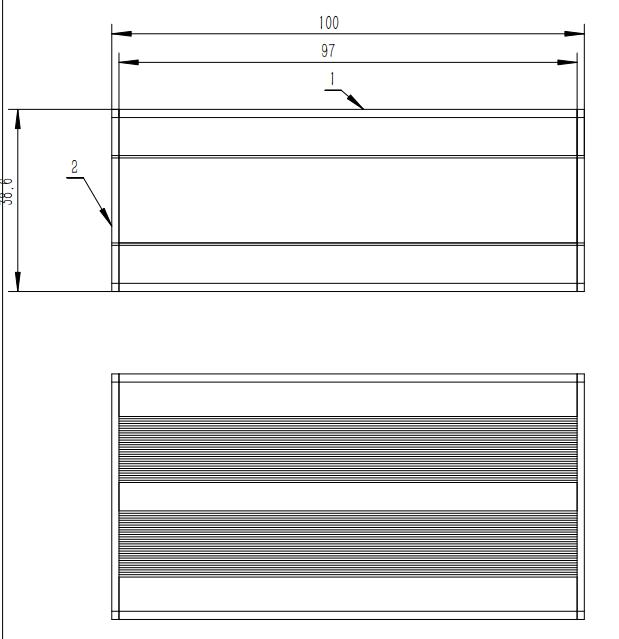
二、细节展示
![]() |
![]() |
![]() |
三、案例说明
1.铝型材外壳内部尺寸
2.铝合金外壳加工流程
四:加工细节
![]() |
项目
|
说明
|
|
部件名称
|
壳体
|
|
|
部件尺寸
|
52-29.5-97
|
|
|
材料信息
|
6063-T5
|
|
|
表面处理
|
喷砂墨玉黑
|
|
|
加工工序
|
锯—攻牙—喷砂—氧化—包装
|
![]() |
项目
|
说明
|
|
部件名称
|
A挡板
|
|
|
部件尺寸
|
52-38.6-1.5
|
|
|
材料信息
|
5052-H32
|
|
|
表面处理
|
喷砂墨玉黑
|
|
|
加工工序
|
激光切割—倒角—打磨(去毛刺)—喷砂—氧
化—激光打标—包装
|
![]() |
项目
|
说明
|
|
部件名称
|
B挡板
|
|
|
部件尺寸
|
52-38.6-1.5
|
|
|
材料信息
|
5052-H32
|
|
|
表面处理
|
喷砂墨玉黑
|
|
|
加工工序
|
激光切割—倒角—打磨(去毛刺)—喷砂—氧
化—包装
|
![]() |
项目
|
说明
|
|
部件名称
|
碳钢镀镍十字沉头螺丝
|
|
|
部件尺寸
|
M3X6
|
|
|
材料信息
|
碳钢
|
|
|
表面处理
|
/
|
|
|
加工工序
|
/
|